Pure.Sink Exclusivo Réz mosogató lecsepegtetővel 100x52 cm Csap jobb oldalon PEX47100RT-62

Cikkszám 1208972083
Pure.Sink Exclusivo Réz mosogató lecsepegtetővel 100x52 cm Csap jobb oldalon PEX47100RT-62
205.836,46 Ft 343.061,23 Ft tart. 27% ÁFA
Ingyenes szállítás
Ma rendelt, szállítás 05-05-2026
Márka
Sorozat

Szín Mosogató Változatok

Nagy láda pozíció Változatok

Jobbra Balra
214.000+ elégedett ügyfél
Ingyenes szállítás 117.000 Ft
Egyszerű visszaküldés 30 napon belül
Környezetbarát szállítási lehetőségek
Színálló
Hőálló
Ellenáll a hőmérsékleti sokkoknak
Minőség az EU-ból
Minden erről a termékről
Termékinformáció

Pure.Sink Exclusivo Réz mosogató lecsepegtetővel 100x52 cm Csap jobb oldalon PEX47100RT-62

Az Pure.Sink Exclusivo mosogató luxus megjelenést és sokoldalúságot kínál minden konyhához. Univerzális kialakításának köszönhetően ez a mosogató síkba építhető és felületre szerelhető, ami maximális rugalmasságot biztosít a telepítés során. Az integrált lecsepegtető rész és a 10 mm-es sugár zökkenőmentes kialakítást biztosít, míg a robusztus anyagok hosszú távú teljesítményt garantálnak.

Jellemzők:

  • Szín: Réz
  • Kialakítás: Sima, lapos alj
  • Higiénikus és praktikus: Könnyen tisztán tartható és nem halmozódik fel benne a szennyeződés
  • Anyag: Kiváló minőségű 18/10 rozsdamentes acél
  • Perem: 1 mm-es lapos peremének köszönhetően tökéletesen alkalmas síkba építéshez
  • Szerelés: Felületre szerelésre is alkalmas
  • Csepegtető rész: A praktikus csepegtető rész extra helyet biztosít a mosogatáshoz, ideális a rendezett munkaterülethez.
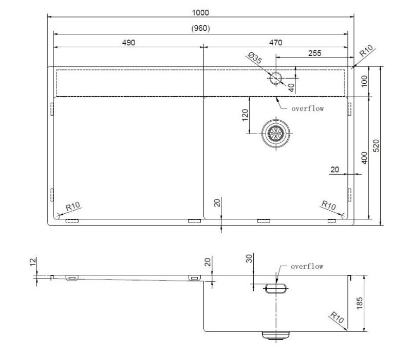
  • Méretek:
    • Mosogató: 470x400 mm
    • Teljes méretek: 100x52 cm
    • Mosogató mélysége: 185 mm
  • Belső sugár: 10 mm a modern megjelenés és az egyszerű karbantartás érdekében
  • Lefolyó: Azintegrált lefolyó megakadályozza, hogy ételmaradékok maradjanak a mosogatóban
  • Pontosan hegesztett mosogatók, amelyek a zökkenőmentes esztétikát kivételes tartóssággal kombinálják – tökéletes, modern konyhai kivitelhez tervezve.
  • Garancia: 5 év gyári garancia

Tartozékok:

  • Réz kosárdugóval
  • Easyclean túlfolyó
  • Szerelőkapcsok
  • Sablon a mosogatóhoz, amely pontos, tiszta és biztonságos kivágást tesz lehetővé

Ez az Pure.Sink Exclusivo mosogató rugalmas beépítési lehetőségeket kínál: sík beépítés vagy felületre szerelés. Az elegáns kialakítás integrált lecsepegtető résszel stílust és funkcionalitást ad a konyhájához.

Akár mindennap főz, akár vendégeket lát vendégül, az Pure.Sink Exclusivo mosogató tartós, stílusos és könnyen használható megoldást kínál a igényes konyhák számára. Tökéletes választás azok számára, akik időtálló és robusztus megoldást keresnek.

Specifikációk
Márka Pure.Sink
Szín Vevő
Magasság 185mm
Sorozat Exclusivo
Végrehajtás Felülről beépítés
Végrehajtás Síkbeépítés
Garancia 5 év
Anyag Rozsdamentes acél
Minimális szekrényméret 60cm
Tálcák száma 1
Csepegtetőrész Igen
Hosszúság 520mm
Kivágás hossza 480
Szélesség 1000mm
Kivágás szélessége 960
Sugár 10
Mélység 185mm
Mosogatók száma 1
Bevonat PVD
Termékosztály Mosogató
Szín Mosogató Vevő
Anyag Mosogató Rozsdamentes acél
Beépítési mód Mosogató Felülről beépítés
Beépítési mód Mosogató Síkbeépítés
Mosogató mélység 185mm
Kivágási méret Síkbeépítés 1001x521mm
Kivágási méret Felépítés 980x500mm
Mosogató Csaptelep 1
Mosogató belső sugár 10mm
Mosogató külső sugár 10mm
Mosogató forma Téglalap
Kosárdugó automatikus ürítés Nem
Nagy láda pozíció Jobbra
Teljes szélesség mosogató 1000mm
Teljes hosszúságú mosogató 520mm
Dugó és túlfolt kleur Vevő
Mosogatómodell Mosogató csepegtetővel
Szállítási információk
Rendeléseink többségét különféle szállítmányozókkal küldjük. Néha más szállítókat is igénybe veszünk specifikus rendelések kézbesítésére vagy a fő szállítmányozók tehermentesítésére, hogy teljesíthessük szállítási ígéreteinket.

A várható szállítási idő mindig megjelenik a termékoldalon. A legtöbb raktáron lévő termékünket még aznap elküldjük. A szállítást megelőző este nyomonkövetési információkat kap egy időintervallummal a szállításhoz. Fontos tudni: a kiválasztott szállítóink sofőrjei a termékeket a földszinti bejárati ajtóig szállítják.

Szintén a nagyobb termékek, mint például a gránit mosogatók, nagy törékeny mosogatók, szekrények stb. esetében este nyomonkövetési kódot kap. Ezeket a termékeket nem kézbesítik a szomszédoknak, és aláírás szükséges, így valakinek otthon kell lennie, hogy átvegye a terméket. Megjegyzés: ezeket a nagy termékeket nem kézbesítik szombaton!

Ha egy nagy termék kézbesítése az első próbálkozáskor nem sikerül, a szállítmányozó e-mailben vagy SMS-ben felveszi önnel a kapcsolatot, hogy egy ütemtervet küldjön, hogy kiválaszthassa az időpontot, amikor otthon lesz.

Szállítási pótdíjak 30–100 € között vonatkoznak a szigetekre történő szállítmányokra, a vízi szállítás és a korlátozott hozzáférhetőség miatti további logisztikai költségek miatt, és pótdíjak érvényesek a raklapos szállítmányokra a törékeny és nehezebb termékek szállításához.
Rozsdamentes acél mosogató ápolása és karbantartása

Rendszeres tisztítás: Naponta tisztítsa meg meleg szappanos vízzel és puha ruhával, majd alaposan szárítsa meg

Kövesse a szálirányt: Mindig az acél szálirányával megegyező irányban törölje le, hogy elkerülje a mikroszkopikus karcolásokat.

Heti polírozás: Használjon enyhe krémes tisztítószert és mikroszálas kendőt a még nagyobb fényesség érdekében.

Vízkő eltávolítása: Azonnal kezelje 50/50 arányú meleg víz és fehér ecet keverékével.

Csiszoló anyagok: Kerülje az acélgyapot, súrolószivacsok vagy csiszoló tisztítószerek használatát. Ezek maradandó karcolásokat okoznak.

Savas ételek: Ne hagyjon sót, ecetet vagy citrusféléket a felületen. Ezek lyukakat okozhatnak.

Erős vegyszerek: Ne használjon fehérítőt, ammóniát vagy klór alapú tisztítószereket.

Műanyag mosogatóedények: Ne használja őket a mosogatóban. Az apró műanyag részecskék idővel beágyazódnak a felületbe.

Információk a gyártóról Pure.Sink
Pure.Sink

A Pure.Sink ötvözi a stílust, funkcionalitást és innovációt a mosogatók és konyhai csaptelepek kollekciójában. Elegáns EU-designjának köszönhetően a termékek tökéletesen illeszkednek a modern konyhákba. A rozsdamentes acél mosogatók integrált dugóval rendelkeznek a maximális higiénia érdekében, és három szerelési lehetőséget kínálnak: aláépített, süllyesztett és ráépített. A préselt kialakítás biztosítja az illesztések nélküli konstrukciót és a könnyű tisztítást.

A rozsdamentes acél konyhai csaptelepek Neoperl perlátorral és Sedal belső mechanikával vannak felszerelve, amelyek tartósságot és tökéletes vízsugarat biztosítanak. Válassza a Pure.Sink megbízhatóságát és kifinomult dizájnját, hogy konyháját magasabb szintre emelje!

Előnyök és hátrányok

Szakértőnk szerint

Meleg elegancia – Gazdag tónus mélységet és karaktert ad
Egyedi stílus – Kevésbé közönséges, ezáltal kiemelkedő
Természetes párosítás – Kiegészíti a fát, követ, és meleg tónusú pultokat
Tartós bevonat – PVD kezelés megakadályozza a fakulást és a korróziót
Higiénikus felület – Könnyen tisztítható puha ruhával és enyhe szappannal

Kopásálló és karcolásálló felület

A színek nem halványulnak gyorsan
Ellenáll az oxidációnak és a foltoknak

Ujjlenyomatok és foltok - Jobban láthatóak polírozott rézen
Nagy karbantartás - Rendszeres tisztítást igényel, hogy megőrizze fényét
Stílusérzékeny - Legjobban rusztikus vagy designer konyhákban működik
Tisztítószerek korlátozása - Savas vagy súrolószerek károsíthatják a felületet

A kemény víz foltokat okozhat

Our top specialist

Kiegészítők

Mikor érdemes vegyi tisztítószereket használni, és mikor természetes módszereket a mosogató szagok ellen?

Kevés dolog zavarja meg annyira a konyha harmóniáját, mint a mosogatóból feláramló váratlan szag. Nem számít, milyen gyönyörűen van kialakítva a tér, vagy milyen makulátlanul tiszta a munkalap.

Van vállalkozása?

Férjen hozzá exkluzív B2B előnyökhöz!

Igényeld a B2B-fiókodat
3.941 Ft Kedvezmény
Csatlakozz a Loriano közösségéhez – otthonszépítőknek
Készen állsz a kapcsolódásra és exkluzív tartalomra? Hírlevelünk stílusötleteket, projekt-útmutatókat, korai hozzáférést az akciókhoz és első betekintést az újdonságokba kínál. Iratkozz fel most, és azonnal megkapod a 3.941 Ft értékű üdvözlő kupont!

Válassza ki az országát:
Bankoverschrijving
Loriano.hu | Copyright 2006 - 2026 | Minden jog fenntartva | Sütik